0
Retour

Marckolsheim (67390)
EXCLUSIF ! Grande maison de 142 m2 sur 6,07 ares au calme

  • à propos de ce
    bien

    En exclusivité, venez decouvrir cette grande maison de 1980, de 142 m2 habitables et 162 m2 au sol, sur un terrain de 6,07 ares.

    Elle comprend :

    Au RDC : une entrée et un dégagement avec placard mural, une cuisine équipée récente (cuisinella), un salon / séjour avec poêle à pellets et accès à la terrasse Est par 2 portes fenêtres, deux chambres, une chambre d'enfant ou bureau, une SDB et un WC séparé.

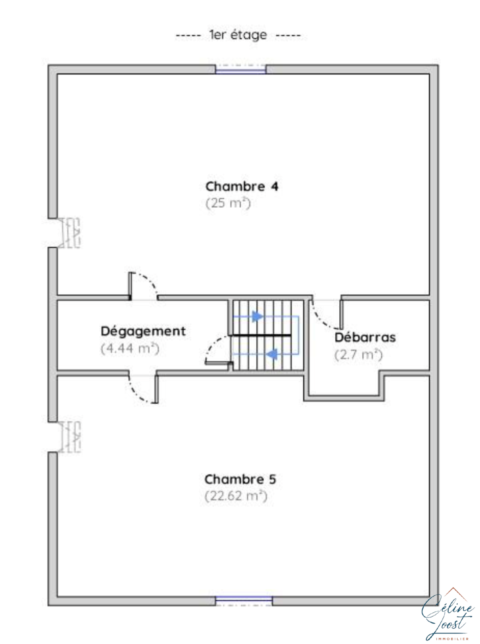
    Au 1er : un sas dessert deux grandes chambres de 25 et 22,6 m2.

    Sous-sol complet ouvert avec porte motorisée.

    Bel espace extérieur aménagé et arboré.

    Cette lumineuse maison est en très bon état d'entretien !

    • Prix
    • Code postal
      67390
    • Surface habitable (m²)
      142 m²
    • surface terrain
      607 m²
    • Surface loi Carrez (m²)
      142 m²
    • Nombre de chambre(s)
      5
    • Nombre de pièces
      7
    • Nombre de niveaux
      3
    • Références
      0403
  • Plus d'informations
    financières

    • Taxe foncière annuelle
      421 €
  • Plus de
    détails

    • Nb de salle de bains
      1
    • Cuisine
      Séparée
    • Type de cuisine
      Equipée
    • Mode de chauffage
      Electrique, Granules
    • Type de chauffage
      Radiateur, Poêle
    • Format de chauffage
      Individuel, AUTRE
    • Terrasse
      OUI
    • Nombre de garage
      2
    • Année de construction
      1980
    • Terrain piscinable
      OUI
  • la
    copropriété

    • Copropriété
      NON
  • Plus d'informations sur
    le quartier

    • Commerces et santé
    • Loisirs
    • Ecoles
    • Transports
    • Pratique
  • Bilan
    énergétique

    DPE GES

    Montant estimé des dépenses annuelles d'énergie pour un usage standard est compris entre 2 110 € et 2 920 € . Prix moyens des énergies indexés sur les années 2021, 2022 et 2023 (abonnements compris).

Ce bien
m'intéresse

Nos outils